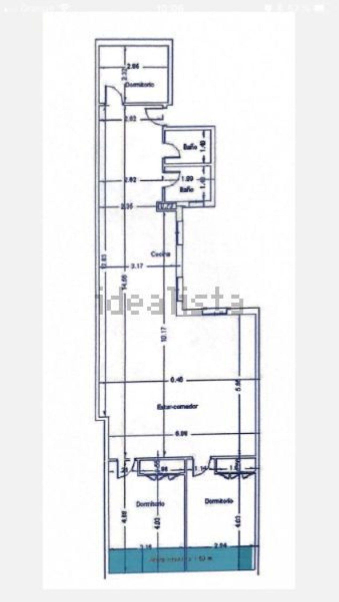
Se vende en Burgos Centro (C/ San Juan). ático reformado a estrenar de 111 m2 y 6 m2 trastero. 3 habitaciones, 2 baños de diseño uno de ellos con hidromasaje e hidroducha, cocina totalmente equipada lacada en negro brillante y electrodomésticos Inox, hall, amplísimo salón comedor con altos techos a varias aguas, suelos en dos tonos de madera, 3 armarios empotrados. Materiales de 1ª calidad con multitud de detalles. Ventanas oscilobatientes Climalit y Velux con persianas. Cocina y baños amueblados, salón y habitaciones sin amueblar para poder amueblarlo a su gusto. Muy luminoso. Calefacción individual de gas natural. Junto a la puerta de entrada a la vivienda dispone de un amplio trastero para guardar todo tipo de enseres. El portal está reformado con ascensor a cota cero. El edificio cuenta además con un patio interior a disposición de los vecinos donde se pueden dejar bicicletas, patinetes. Cuenta con dos entradas al edificio, una de ellas por calle San Juan y otra por calle Hortelanos, donde se dispone de numerosas plazas de aparcamiento y facilidad de llegar con el coche hasta el mismo portal para la descarga de bultos. Pequeños gastos de comunidad, luz, gas y agua a cargo del inquilino. Actualmente esta alquilado con rentas de 700 euros al mes, por lo que habría que subrogarse al contrato de arrendamiento hasta su finalización, por lo que solo se harán visitas para personas realmente interesadas en su compra con las condiciones indicadas. No deje pasar la oportunidad de vivir en este maravilloso sitio con todos los servicios al alcance de su mano, todos los principales lugares de Burgos a pocos minutos andando. Llámenos y se lo enseñamos con mucho gusto. Estamos en calle Progreso Nº1.
Características básicas
117 m2 construidos
97 m2 útiles
3 dormitorios
2 Baños
Segunda mano/Buen estado
Armarios empotrados
Trastero
Edificio
Planta 4, exterior
Con ascensor
Certificación energética: En trámite
Equipamiento
Número plantas edificio: 4
Vecinos por planta: 2
Tipo de suelo: Parquet























